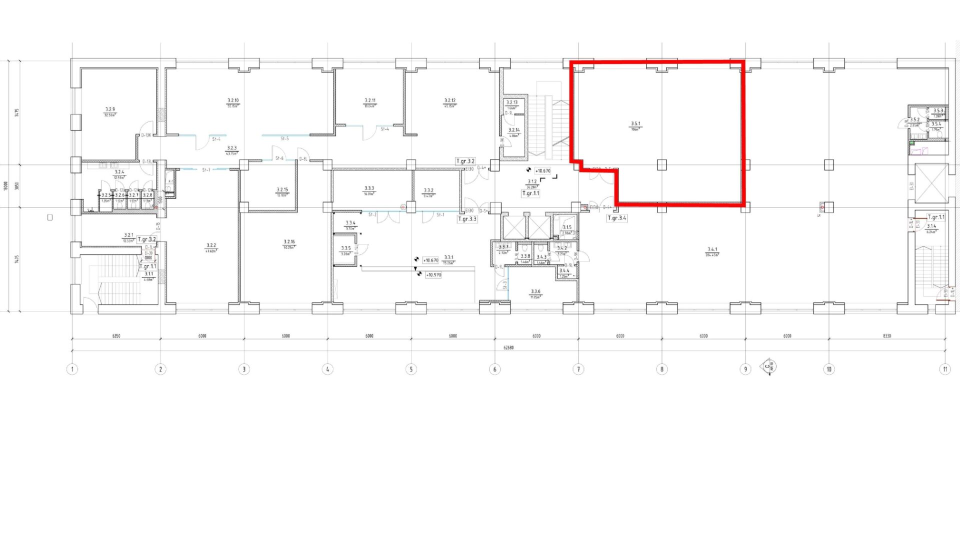
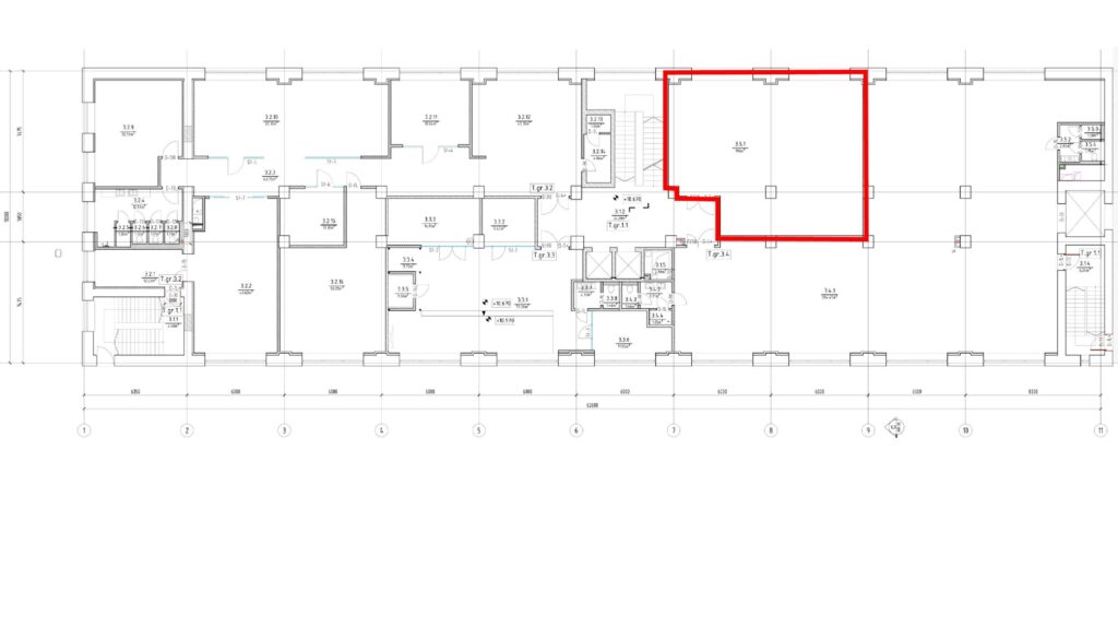
Сдаётся светлое офисное помещение в отличной локации — Grīziņkalns

Zemitāna iela 9, Grīziņkalns, Rīga, LV-1012

Информация

Помещение универсальное, идеально под любой вид деятельности и полностью соответствует требованиям для медицинских учреждений (возможно получение кода медицинского помещения).

Преимущества:
Гибкая планировка
Очень светлое и уютное пространство
Презентабельное здание
Удобная локация: рядом центр Риги, быстрый доступ до Teika

Прекрасный выбор для тех, кто ищет престиж, комфорт и выгодное расположение

WhatsApp
Phone
WhatsApp
Phone